Kapitalanlage mit 2,05 % Rendite: 3-Zi-Wohnung in Prenzlauer Berg
Berlin Prenzlauer Berg, EG zum Kauf
Kontaktdaten
-
NameFrau Catrin Tomaselli (CaB)
Geschäftsführung -
Mobil
Objektdaten
-
Objekt IDSTOR_PB
-
ObjekttypenEtagenwohnung, Wohnung
-
Adresse(Prenzlauer Berg)
10409 Berlin -
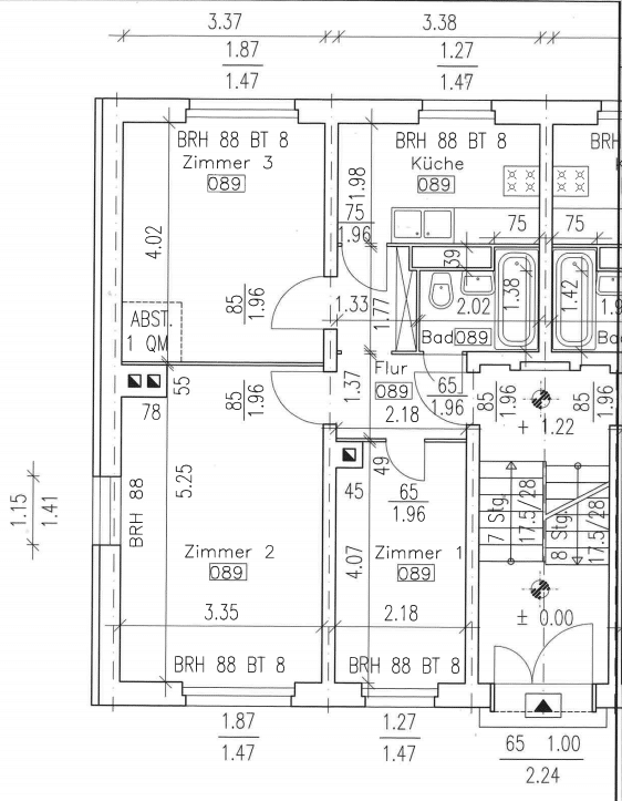
Wohnfläche ca.54,47 m²
-
Zimmer gesamt3
-
Schlafzimmer2
-
Badezimmer1
-
HeizungsartFernwärme
-
Wesentlicher EnergieträgerFernwärme
-
Baujahr1958
-
Hausgeld342 EUR
-
Käuferprovision3,57% Käufer-Provision inkl. MwSt. Die Provision ist verdient und fällig mit Beurkundung des notariellen Kaufvertrages. Wir haben einen provisionspflichtigen Maklervertrag mit dem Verkäufer in gleicher Höhe abgeschlossen.
-
Kaufpreis pro m²3.763,54 EUR
-
Heizkosten90,17 EUR
-
Nebenkosten100,99 EUR
-
Kaufpreis205.000 EUR
Ausstattung / Merkmale
- ✓ Keller
Energieausweis
-
EnergieausweistypVerbrauchsausweis
-
Ausstellungsdatum16.07.2018
-
Gültig bis07-2028
-
Baujahr1958
-
PrimärenergieträgerFernwärme
-
Endenergieverbrauch80,00 kWh/(m²·a)
-
EnergieeffizienzklasseC
Objektbeschreibung
Beschreibung
Die Wohnung befindet sich im Erdgeschoss eines gepflegten Gebäudes in einer ruhigen Wohnanlage, umgeben von einem ansprechend gestalteten Gemeinschaftsgarten mit begrünten Wegen.
Mit einer Wohnfläche von ca. 54 m² umfasst die Einheit zwei Schlafzimmer, ein Wohnzimmer, eine separate Küche sowie ein Badezimmer mit Badewanne. Die Immobilie befindet sich in einem sehr guten Zustand und verfügt über moderne Ausstattungsmerkmale, darunter Fenster mit automatisiertem Rollladensystem, die für hohen Wohnkomfort und eine einfache Handhabung sorgen. Ein Kellerabteil rundet das Angebot ab.
Der Blick ins Grüne schafft eine angenehm ruhige und private Wohnatmosphäre, mit direkter Ausrichtung zum Gemeinschaftsgarten und einem hohen Maß an Privatsphäre, wodurch sich die Wohnung sowohl zur Eigennutzung als auch als Kapitalanlage hervorragend eignet.
Die Wohnung ist seit 2005 unbefristet vermietet und erzielt eine jährliche Nettokaltmiete von 4.197,48 €, entsprechend einer Rendite von 2,05 %. Es handelt sich somit um eine stabile und sichere Kapitalanlage, ideal für Investoren, die einen konstanten Cashflow in einer der etabliertesten Lagen Berlins suchen.
Auch das Wertsteigerungspotenzial im mittel- bis langfristigen Zeitraum ist attraktiv, dank der strategischen Lage und der konstant hohen Nachfrage nach Mietwohnungen im Quartier.
Ausstattung
- Zentrale Lage
- Gute Anbindung an den öffentlichen Nahverkehr
- Grünflächen in der Umgebung
- Kellerabteil
- Sehr gutes Potenzial als stabile Kapitalanlage
- Rendite von 2,05 %
Lage
Die Wohnung befindet sich in einer ruhigen und gut angebundenen Wohngegend von Prenzlauer Berg, die sich durch weitläufige Grünflächen und kleine, gepflegte Wohnanlagen in einer angenehm stillen Umgebung auszeichnet.
Die Lage bietet eine hervorragende Anbindung an den Rest der Stadt: S-Bahn- und Straßenbahnlinien befinden sich in unmittelbarer Nähe und ermöglichen es, das Stadtzentrum sowie die angrenzenden Viertel Friedrichshain und Weißensee in wenigen Minuten zu erreichen.
In der Umgebung gibt es Supermärkte, lokale Dienstleistungen, Schulen und Grünflächen, was die Gegend besonders beliebt macht bei Menschen, die ein stabiles, gut vernetztes Wohnumfeld suchen – ideal auch für langfristige Kapitalanlagen.
Sie sehen gerade einen Platzhalterinhalt von Google Maps. Um auf den eigentlichen Inhalt zuzugreifen, klicken Sie auf die Schaltfläche unten. Bitte beachten Sie, dass dabei Daten an Drittanbieter weitergegeben werden.
Mehr Informationen10409 Berlin, Deutschland (auf Google Maps ansehen)
Italiano
English
