Un piccolo nido per grandi sogni a Friedrichshain
Berlin Friedrichshain, EG da acquistare
Dati di contatto
- 
             NomeHerr Giuseppe Stincone
 Sales Manager (Kfm.)
- 
             Mobile
Dati dell'oggetto
- 
         Oggetto IDBOED_FH
- 
         TipologiaAppartamento, Appartamento generale
- 
         Indirizzo(Friedrichshain)
 10245 Berlin
- 
         Totale piano edificio5
- 
         Superficie ca.26,27 m²
- 
         Vani totali1
- 
         Bagni1
- 
         Tipo riscaldamentoRiscaldamento centrale
- 
         RiscaldamentoGas
- 
         Anno di costruzione1905
- 
         Spese condominio149 EUR
- 
        Commissione3,57% vom Kaufpreis inkl. MwSt Die Provision ist verdient und fällig mit Beurkundung des notariellen Kaufvertrages. Wir haben einen provisionspflichtigen Maklervertrag mit dem Verkäufer in gleicher Höhe abgeschlossen.
- 
         Prezzo / m²6.661,59 EUR
- 
         Prezzo175.000 EUR
Caratteristiche
- ✓ Cantina
- ✓ Cucina
Efficienza energetica
- 
						Tipo efficienza energeticaBedarfsausweis
- 
						Data di rilascio12.12.2017
- 
						Valido a12-2027
- 
						Anno di costruzione1905
- 
						Fonte d'energia primariaGas
- 
						Consumo energetico finale92,30 kWh/(m²·a)
- 
						Classe efficienza energeticaC
Descrizione
Descrizione
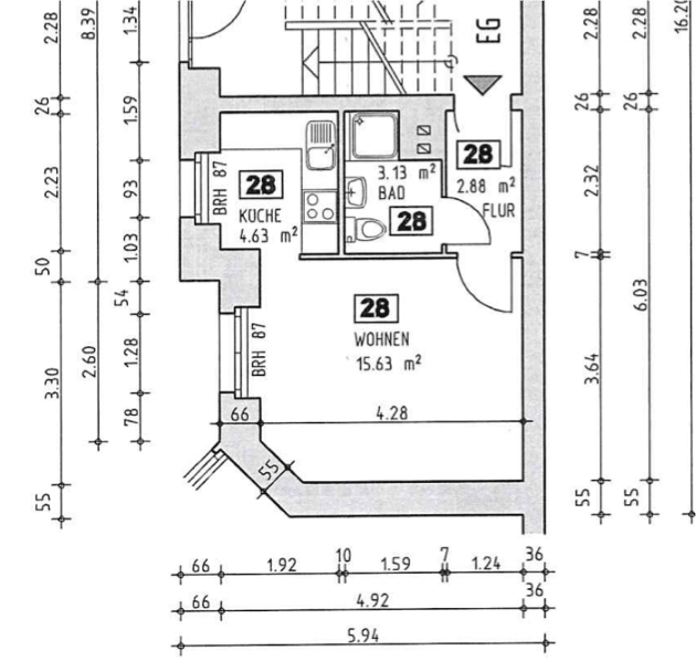
Questo grazioso appartamentino, di circa 27 m², si trova al piano terra di un edificio d’epoca e si affaccia sul cortile interno.
Il soggiorno è soppalcato ed ospita un letto matrimoniale, mentre nella parte inferiore trova spazio una comoda zona living per divano letto e armadiature. L’ambiente include anche una zona pranzo, situata accanto alla finestra. La cucina separata è completamente attrezzata, mentre il bagno è dotato di doccia.
Elemento distintivo dell’appartamento è una parete in mattoni a vista, che mette in risalto il carattere storico dell’edificio e ne valorizza l’atmosfera autentica. Una soluzione ideale come investimento o come pied-à-terre in una delle zone più richieste di Berlino.
Caratteristiche
- Posizione eccellente
- Zona notte soppalcata
- Ambiente intmo e confortevole
- Affaccio sul cortile interno
Quartiere / Posto
Friedrichshain è uno dei quartieri più giovani e vivaci di Berlino.
Ricco di caffè, ristoranti e locali, trova il suo cuore pulsante intorno alla celebre Boxhagener Platz, dove ogni fine settimana si svolge un caratteristico mercatino delle pulci e streetfood.
Il quartiere è rinomato per la sua vita notturna, con alcuni dei bar e club più conosciuti della città, ma offre al tempo stesso zone tranquille e residenziali, perfette per chi desidera un equilibrio tra dinamismo urbano e relax quotidiano.
Non mancano ampi spazi verdi: qui si trovano due dei più grandi parchi di Berlino, il Volkspark Friedrichshain e il Treptower Park, che costeggia la Sprea.
La zona è ottimamente collegata grazie alla presenza di S-Bahn e bus, e risulta particolarmente comoda anche per raggiungere l’aeroporto.
Stai visualizzando un contenuto segnaposto da Google Maps. Per accedere al contenuto effettivo, clicca sul pulsante sottostante. Si prega di notare che in questo modo si condividono i dati con provider di terze parti.
Ulteriori informazioni10245 Berlin, Germania (auf Google Maps ansehen)
 
			 Deutsch
 Deutsch English
 English

 
 
 
 
 
 
 
 
 
 
